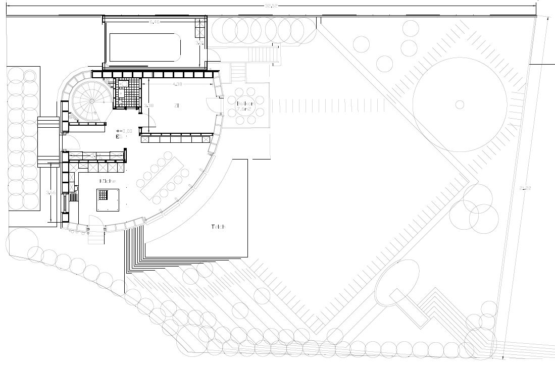
Dieses Architektenhaus bietet einen zeitlos modernen Grundriss mit einem unverwechselbaren Gesamtbild. Zwei Grundmauern bilden einen soliden 90°-Winkel, der von einer abgerundeten und hell verglasten Fassade umspannt wird.
Das Erdgeschoss stellt den zentralen
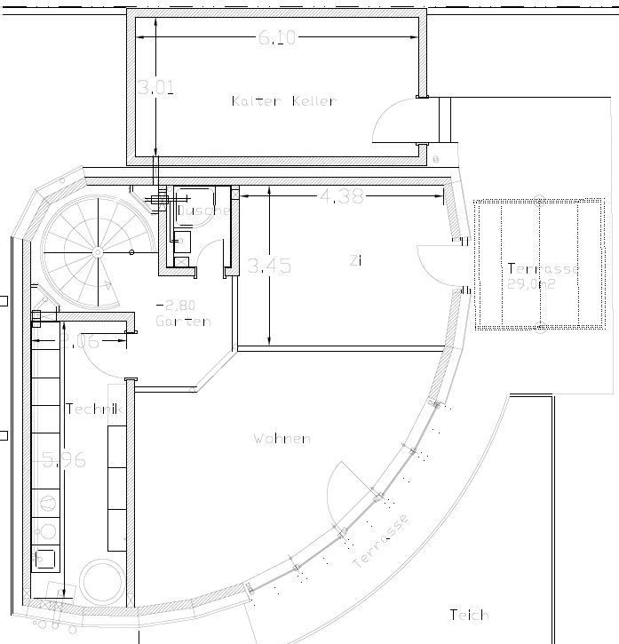
Wohnraum dar. Der große lichtdurchflutete Wohn- und Essbereich ist nach oben hin offen gestaltet und bietet eine riesige Glasfassade über zwei Etagen. Das Wohngefühl und der Bezug zum Garten und der Natur ist hier einmalig und unbeschreiblich! Die großzügige Küche ist offen gestaltet und verfügt über einen Zugang zum oberen Gartenbereich. Ein separates Zimmer mit Balkon und Treppenabgang zum Garten kann als flexibel
als Elternschlafzimmer oder Büro genutzt werden. Ebenso ist eine großzügige Öffnung zum Wohn- und Essbereich denkbar um das Wohnerlebnis noch eindrucksvoller zu gestalten. Weiterhin gibt es auf dieser Etage ein WC.
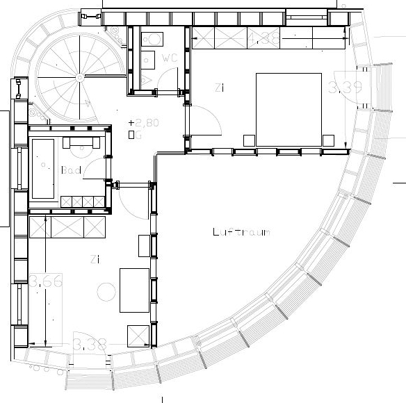
Der Treppenaufgang ist aus modernem Sichtbeton gestaltet. Das Obergeschoss bietet mit einer kleinen Galerie den Bezug zum
darunter liegenden Wohnraum. Hier gibt es zwei Zimmer, die als Schlafzimmer, Kinderzimmer, Gästezimmer oder Büro genutzt werden können. Ebenso befinden sich hier ein WC sowie ein Tageslicht-Badezimmer.
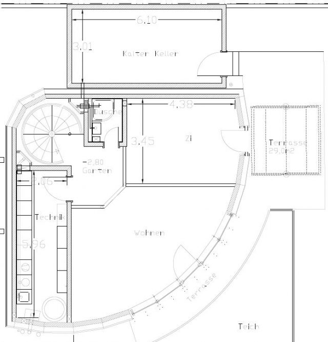
Das Untergeschoss befindet sich auf Gartenniveau. Abgesehen von einem kleinen Bad und einem Kellerraum steht hier nahezu die gesamte Grundfläche des Hauses als
großer Wohnraum zur Verfügung. Die Glasfassade ist außen von einem Holzsteg gesäumt, an den sich ein kleiner Teich anschließt. Dieser helle und sehr großzügige Raum kann als Büro, Studio oder Freizeit- und Hobbybereich gestaltet werden. Ebenso ist eine Nutzung als großzügiger Privat- und Eltern-Schlafbereich denkbar.
Der Kellerraum beherbergt die Haustechnik und bietet darüber hinaus noch genügend Stauraum.
Die Garage im Erdgeschoss ist als separater Baukörper konzipiert. Ein Zugang zum Haus ist über den Balkon möglich. Unter der Garage befindet sich ein weiterer Kellerraum, der über das Gartengeschoss von außen zugänglich ist.
Energiekonzept:
Diese Architektenhaus wurde bereits 1998 nach damals modernster Technik als zertifiziertes Passivhaus entwickelt. Damit war es seiner Zeit technologisch weit voraus. Und auch heute erfüllt das Haus noch aktuelle Ansprüche für eine bestmögliche A+ Energieeinstufung mit einem Endenergiebedarf von gerade einmal 10,1 kW/m²a.
Ermöglicht wird dies unter anderem durch Ausstattungsmerkmale, wie Dreifachverglasung, Wärmerückgewinnung, eine Photovoltaikanlage sowie einer modernen Wärmepumpe als zentrale Heiztechnik.
Im Jahr 2024 wurde die Wärmepumpe erneuert und ein vollflächiger Sonnenschutz für die große Glasfassade installiert.
Durch das innovative Konzept und die technischen Modernisierungen lassen sich die Nebenkosten für das gesamte Haus auf extrem niedrigem Niveau halten.
Ausstattung und Zustand:
Das gesamte Haus wurde mit hochwertigen Materialien gebaut und ausgestattet. Fenster- und Glaselemente der großen Fassade sind in Pfosten-Riegel-Konstruktion aufgebaut. Die Böden bestehen durchgehend aus Echtholz-Parkett. Das Treppenhaus bietet mit Sichtbeton eine zeitlos moderne und robuste Basis. Das Gebäude befindet sich in einem gepflegten Zustand. Die Holzbeläge der Terrasse und des Balkons wurden 2024 erneuert. Die Wohnräume befinden sich in einem der Nutzung entsprechenden Zustand.
Lage und Umgebung:
Das Einfamilienhaus befindet sich in ruhiger Wohnlage in Bretten. Die Anbindung an die B35 nach Stuttgart und Bruchsal sowie die B293 nach Heilbronn ist sehr gut.
| Grundstück | ca. 604 m² |
| Wohnfläche | ca. 169 m² |
| Wohnräume | Wohn-Essbereich mit offener Küche, 4 Zimmer, 2 Bäder, 2 WCs, Terrasse, Balkon |
| Nutzräume | Garage, Kellerräume |
| Baujahr | 1998 |
| Energieverbrauch | 10,10 kWh/m²a (A+) |
| Energieträger | Strom |
| Kaufpreis | 698.000,- € zzgl. 2,38 % Provision |

















