Dieses luxuriöse Einfamilienhaus besticht durch die großzügige und offene Architektur, die sehr hochwertige und gepflegte Ausstattung sowie die ruhige Ortsrandlage.
Der Eingangsbereich ist als praktischer Windfang mit Garderobe und Treppenabgang in den Keller gestaltet. Danach erschließt sich der sehr großzügig und hell gestaltete Wohnbereich.

Der gesamte Wohn- und Essbereich bietet auf insgesamt 68 m² ein sensationelles Wohngefühl. Der Raum wirkt dabei ausgesprochen großzügig, ist aber sehr durchdacht in verschiedene Bereiche untergliedert. Ein großer Teil des Raumes ist bis zum Dach offen gestaltet. Die Dachflächenfenster sorgen für ein sehr helles und offene Ambiente. Eine Galerie im Obergeschoss sorgt für einen Bezug zwischen
den verschiedenen Bereichen.
Die Sofa-Ecke sowie der Essbereich befinden sich unter der Galerie. Dadurch werden hier etwas privatere Areale geschaffen und ein heimeliges Wohngefühl erzeugt. Ein offener Kamin sorgt nicht nur für ein tolles Ambiente sondern bietet auch wohlige Wärme. Er unterstützt die Heizanlage und ermöglicht dadurch kostengünstiges Beheizen des
gesamten Raumes.
Der offen integrierte Wintergarten ist auf drei Seiten voll verglast und schafft dadurch einen hellen und naturbezogenen Aufenthaltsbereich. Die überdachte Terrasse ist auf zwei Seiten mit großzügigen Glastürelementen zum Wohnraum hin eingefasst. Dadurch hat man beim Aufenthalt im Freien einen sehr guten Wind- und Wetterschutz.

An den Essbereich schließt sich die geräumige und funktionale Küche an. Neben einer Speisekammer gibt es noch einen Hauswirtschaftsraum. Beide sind direkt mit der Küche verbunden. Der Hauswirtschaftsraum verfügt über einen direkten Zugang zum überdachten PKW-Stellplatz. Weiterhin gibt es hier auch einen weiteren Zugang zum Garten.
Weiterhin bietet das Erdgeschoss noch ein kleines Gästebad mit WC sowie einen als Musikzimmer konzipierten Raum. Dieser bietet sich auch zur Verwendung als Büro oder Gästezimmer an.
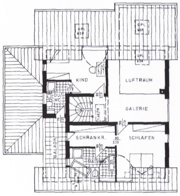
Das Obergeschoss ist über eine hochwertig gestaltete zentral angeordnete Treppe erreichbar. Hier gelangt man auf die Galerie, die einen Blick auf den Luftraum im EG ermöglicht und den Bezug zum Wohnbereich schafft. Die Galerie bietet genügend Platz für die Gestaltung eines separaten Lese- oder Ruhebereiches.
Im Obergeschoss befinden sich das
Elternschlafzimmer sowie ein Kinder- oder Gästezimmer. Das Elternschlafzimmer verfügt über einen begehbaren Schrankbereich mit Durchgang zum separaten Badezimmer sowie zum Balkon. Das Bad ist hochwertig ausgestattet und bietet eine Eckbadewanne und eine große Dusche.
Das zweite Zimmer verfügt über ein eigenes angeschlossenes Badezimmer mit Dusche und Zugang zum Balkon.
Im Keller befinden sich neben der Haustechnik noch einige weitere Funktions- und Nutzräume. Neben der Waschküche gibt es auch hier noch ein kleines Badezimmer. Der gesamte Keller ist hochwertig ausgebaut. Die Räume verfügen über Tageslicht und können als Stauraum, aber auch für Hobby und Freizeit genutzt werden.
Der Garten bietet eine gut nutzbare und frei gestaltbare Fläche. Das Grundstück befindet sich in unverbaubarer direkter Feldrandlage.
| Grundstück | ca. 453 m² |
| Wohnfläche | ca. 168 m² |
| Wohnräume | Wohn-Essbereich, Küche, 3 Zimmer, 4 Bäder, Terrasse, Balkon |
| Nutzräume | Hauswirtschaft, Waschküche, Kellerräume |
| Baujahr | 1996 |
| Energieverbrauch | 130,60 kWh/m²a (E) |
| Energieträger | Gas-Zentralheizung / Holz |
| Kaufpreis | 749.000,- € zzgl. 3,57 % Provision |























